Back to overview

£750,000

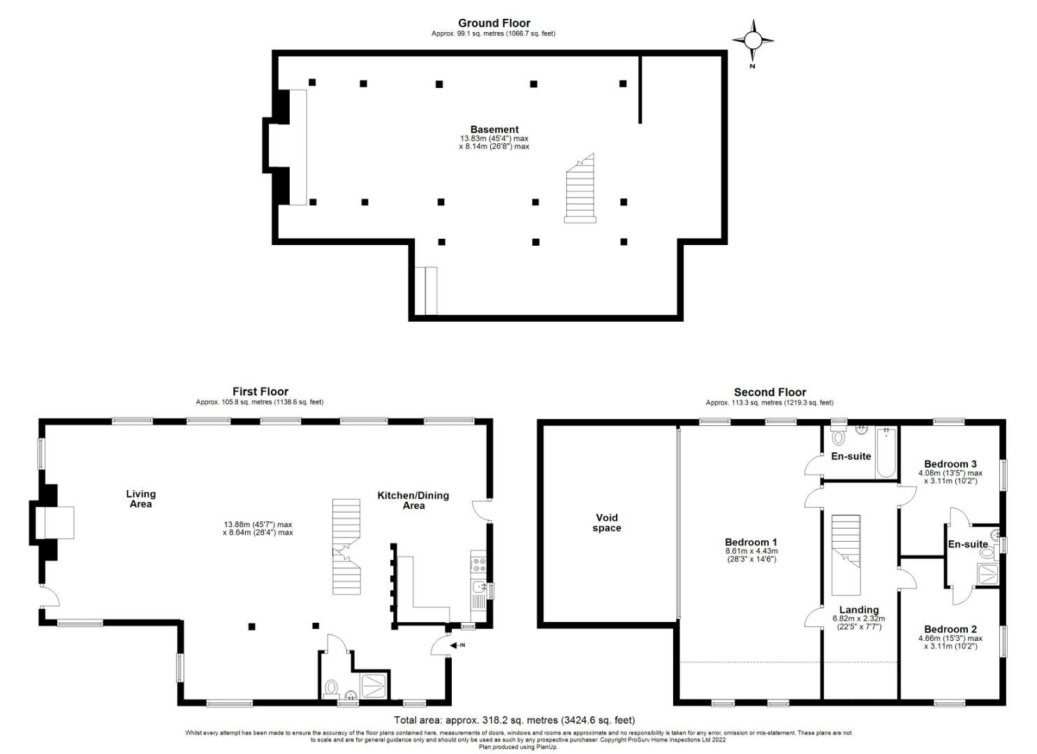
Bedfordwell Road, Eastbourne

Nonsuch, 17a Bedfordwell Road, Eastbourne, East Sussex, BN21 2BG

KEY FEATURES

3 bedrooms

3 bathrooms


AT A GLANCE

Detached three bedroom timber framed house located within one mile of Eastbourne's beach and mainline railway station

DOWNLOADS

LOCATION