Discover our selection of properties for sale, from cosy cottages to spacious farmhouses and working farms, all set in some of the countryside’s most picturesque locations.
£255,000
Barn on Chickenden Lane, Staplehurst, Kent
Barn on Chickenden Lane Chickenden Lane, Staplehurst, TN12 0DPKEY FEATURES
3 bedrooms
1.15 acres
AT A GLANCE
*INVITING BEST AND FINAL OFFERS BY FRIDAY 12TH SEPTEMBER AT 12NOON*A detached unconverted curtilage listed Kent Barn with full planning permission to be converted into a three bedroom residential dwelling within the Cranbrook School Catchment Area in a rural private plot with private entrance and paddock land.
A detached unconverted curtilage listed Kent Barn with full planning permission to be converted into a three bedroom residential dwelling within the Cranbrook School Catchment Area in a rural private plot with private entrance and paddock land.
DESCRIPTION
The Barn on Chickenden Lane is situated on a quiet no through road just to the east of Staplehurst. The Barn itself is detached and unlisted and provides an incoming
purchaser with the opportunity to convert the building into a three bedroom residential dwelling under Maidstone Borough Council planning reference 23/501635/FULL.
The proposed accommodation comprises the following: -
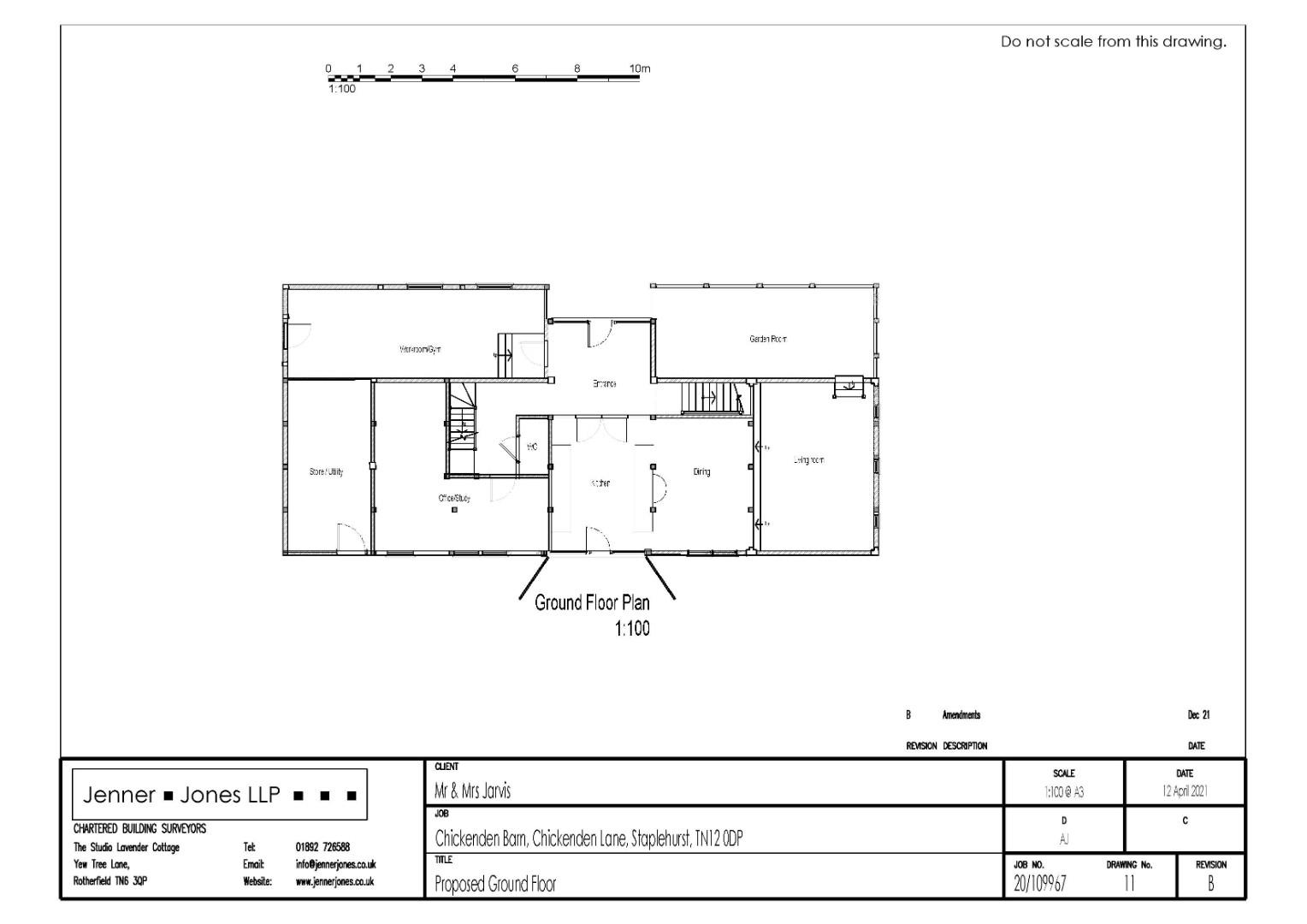
The Front door to the north opens to Entrance Hall with door through to Workroom/Gym further doors lead to a Downstairs Cloakroom, Office/Study and open plan Kitchen, Dining Room and Living Room with link through to Garden Room and doors to Rear Garden. In addition, there is a Store/Utility Room accessed from the Rear Garden.
Two staircases lead from the Ground Floor Entrance Hall to the First Floor. At the top of the West Staircase is the Master Bedroom with En-suite, as well as a Study Area immediately at the top of the stairs on the Landing.
The East Staircase leads to Bedroom 2 with En-suite and Bedroom 3 with En-suite. The total floor area of the barn once converted will amount to 2368 ft².
Outside there are to be lawned and landscaped gardens to the front, sides and rear with a new private sweeping access drive directly from Chickenden Lane through
the paddock leading to a parking area between the pond and the dwelling as shown on the artist impression on the front of the brochure.
