Discover our selection of properties for sale, from cosy cottages to spacious farmhouses and working farms, all set in some of the countryside’s most picturesque locations.
£1,750,000
Court-At-Street
Honeypot Farm Court-At-Street, Hythe, CT21 4PHKEY FEATURES
3.80 acres
AT A GLANCE
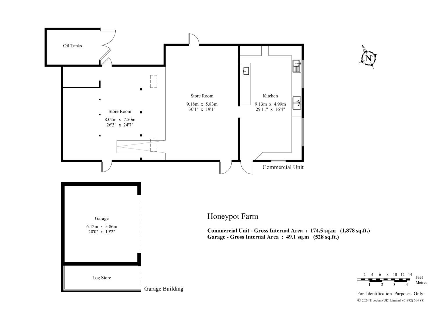
GENERAL DESCRIPTIONHoneypot Farm comprises of a variety of component parts that creates an attractive property with far reaching views across the Romney Marsh and to France. There are significant opportunities for additional income streams. The main component parts of the property are a 3-bedroom farmhouse, 1-bedroom annexe, two converted barns, which are currently used as holiday lets, a range of general purpose agricultural buildings and a commercial barn used as part of the vendors events business. There is additional grazing land fully stock fenced extending to approximately 1.50 acres.
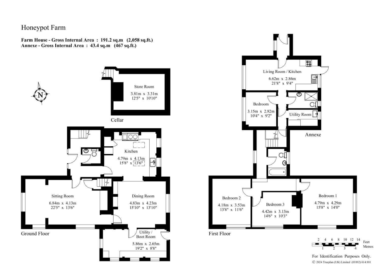
FARMHOUSE
A detached 3 bedroom farmhouse of solid brick construction under a pitched clay tile roof part clad in timber weather boarding and part tile hung on the upper elevations. The internal accommodation of the farmhouse is in good order throughout and comprises the following: -
Front Door opens to Entrance Hall, with doors to Kitchen with double AGA, and Downstairs Cloakroom. A further door from the Entrance Hall leads to Sitting Room with wood burner and door to Cellar Stairway. A further door from the Sitting Room leads through to the Dining Room with an opening to the Kitchen and door to Utility Room/Boot Room with door to Rear Garden.
Stairs up from the Entrance Hall lead to the First Floor Landing with doors to Master Bedroom (double), Bedroom 2 (double), Bedroom 3 (double) and Family Bathroom with bath, wash hand basin and w/c. A further door from the First Floor Landing leads to the Annexe.
Outside the grounds are predominantly laid to lawn with surrounding mature trees, shrubs and borders creating a rural yet versatile residential curtilage.
Alex Cornwallis
Director
Challock Branch
Landline 01233 740077
Mobile 07799 846872
DOWNLOADS
LOCATION
