Discover our selection of properties for sale, from cosy cottages to spacious farmhouses and working farms, all set in some of the countryside’s most picturesque locations.
£350,000
Five Ashes, Mayfield, East Sussex, TN20
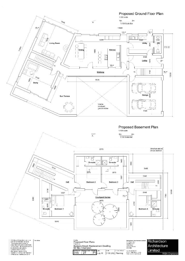
Land at Badgers Mead Farm Heathfield Road, Five Ashes, Mayfield, TN20 6JJKEY FEATURES
0.46 acres
AT A GLANCE
A rare opportunity to purchase a residential development plot in a rural setting with planning permission for a 4-bedroom detached dwelling with garage and garden. Total site area is approximately 0.46 acres.DESCRIPTION
The Land at Badgers Mead provides a rare opportunity to purchase a highly desirable rural, yet accessible building plot with a contemporary design and layout already approved under planning reference WD/2016/1746/F- Wealden District Council.
The approved consent grants permission for the erection of a detached four-bedroom dwelling with integral garage amounting to 0.46 acres.
There is additional amenity land available amounting to 2.15 acres which is available via separate negotiation, subject to purchasing the building plot.
Please see the Property Particulars for further information on other subjects such as services, access, boundaries, wayleaves and rights of way etc.
