Discover our selection of properties for sale, from cosy cottages to spacious farmhouses and working farms, all set in some of the countryside’s most picturesque locations.
£325,000
Hawkbrand House, Brenchley, Kent
Hawkbrand House Knowle Road, Brenchley, Kent, TN12 7DJKEY FEATURES
3 bedrooms
AT A GLANCE
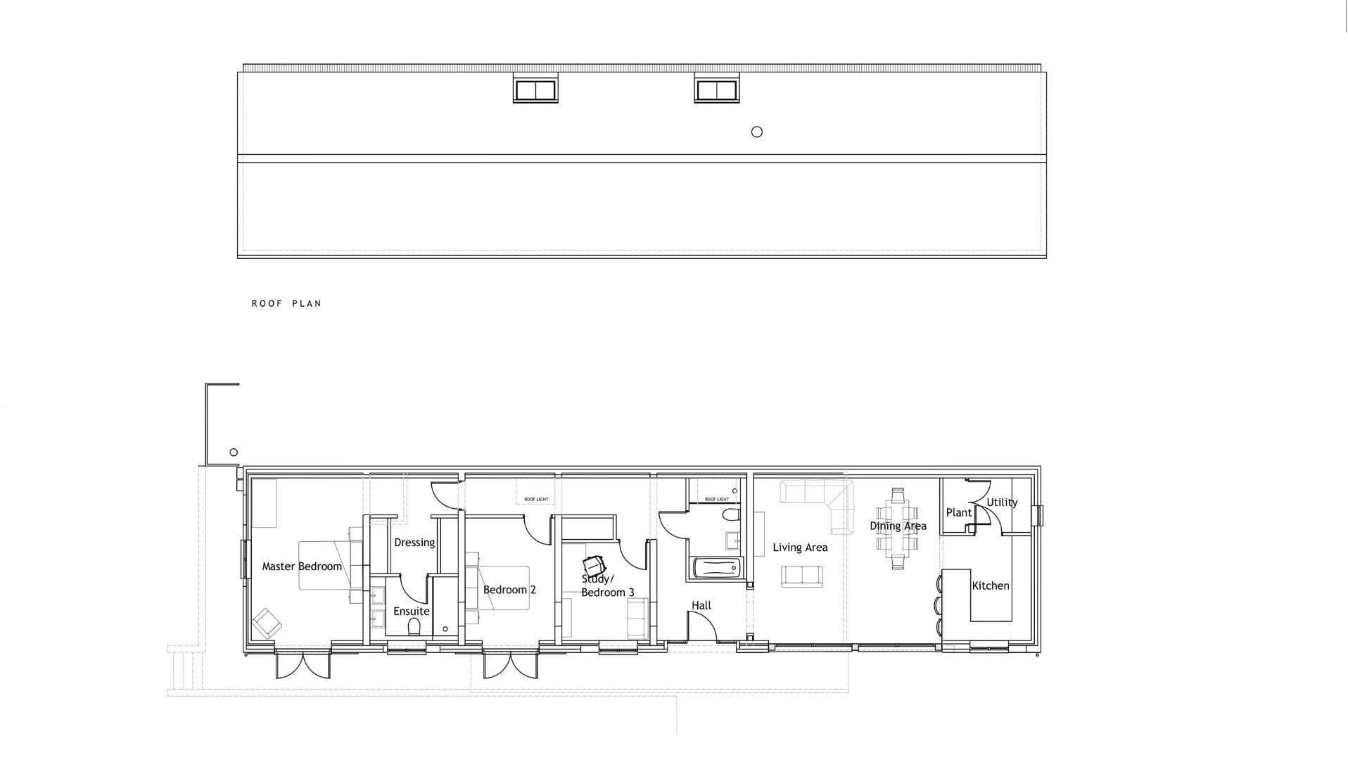
A former farm office building and has planning consent for redevelopment into a 3-bedroom dwelling close to the popular village of Brenchley.Approval for the redevelopment into a 3 bedroom detached dwelling (1,600ft²) with landscaped gardens to the south.
Planning Application reference: - 18/03778/FULL – Tunbridge Wells Borough Council.
In all extending to 0.17 acres.
Single storey conversion including Master Bedroom with Dressing Room and Ensuite.
FOR SALE BY PRIVATE TREATY
GUIDE PRICE: £325,000
Millie Palmer-Pilc
Chartered Surveyor
Challock Branch
Landline 01233 740077
Mobile 07353 002627
DOWNLOADS
LOCATION
