Discover our selection of properties for sale, from cosy cottages to spacious farmhouses and working farms, all set in some of the countryside’s most picturesque locations.
£1,500,000
Little Southernden Farm, Headcorn, Ashford, Kent
Little Southernden Grigg Lane, Headcorn, Ashford, TN27 9LPKEY FEATURES
3 bedrooms
1 bathrooms
51.77 acres
AT A GLANCE
Smallholding with potential including a detached 3 bedroom farmhouse, a significant range of farm buildings, barns & stables, riding arena, ponds, grazing and arable land. Extending to a total of approximately 51.77 acres.DESCRIPTION
Little Southernden Farm is located off Grigg Lane, some 3 miles north east of the village of Headcorn. The property comprises a rural smallholding extending to a total of 51.77 acres. It comprises a variety of component parts that have potential throughout and can provide an incoming purchaser with the opportunity to expand, develop or maximise the possibilities of the property in its entirety whilst being within easy access to Headcorn and its local amenities, facilities and transport links.
Farmhouse
A detached three bedroom Farmhouse of solid brick construction, part timber weatherboard clad under a pitched hipped clay tiled roof with a conservatory extension on the western elevation. The house is in need of modernisation throughout but does have potential for expansion into the adjoining buildings if need be. The original part of the house is believed to be about 250 years old and was built onto an old barn/stable building. An extension was added to the western elevation at a later date and part of the accommodation was extended into part of the old barn.
Outside, the house is situated within enclosed, mainly lawned gardens to the front and side whilst the 3 Stables to the rear open out onto part of the Farmyard opposite the Dutch Barn. To the side of the house is an open fronted Car Port. On the western side of the garden is part of a large natural Pond and an old Garage about 4m x 2m.
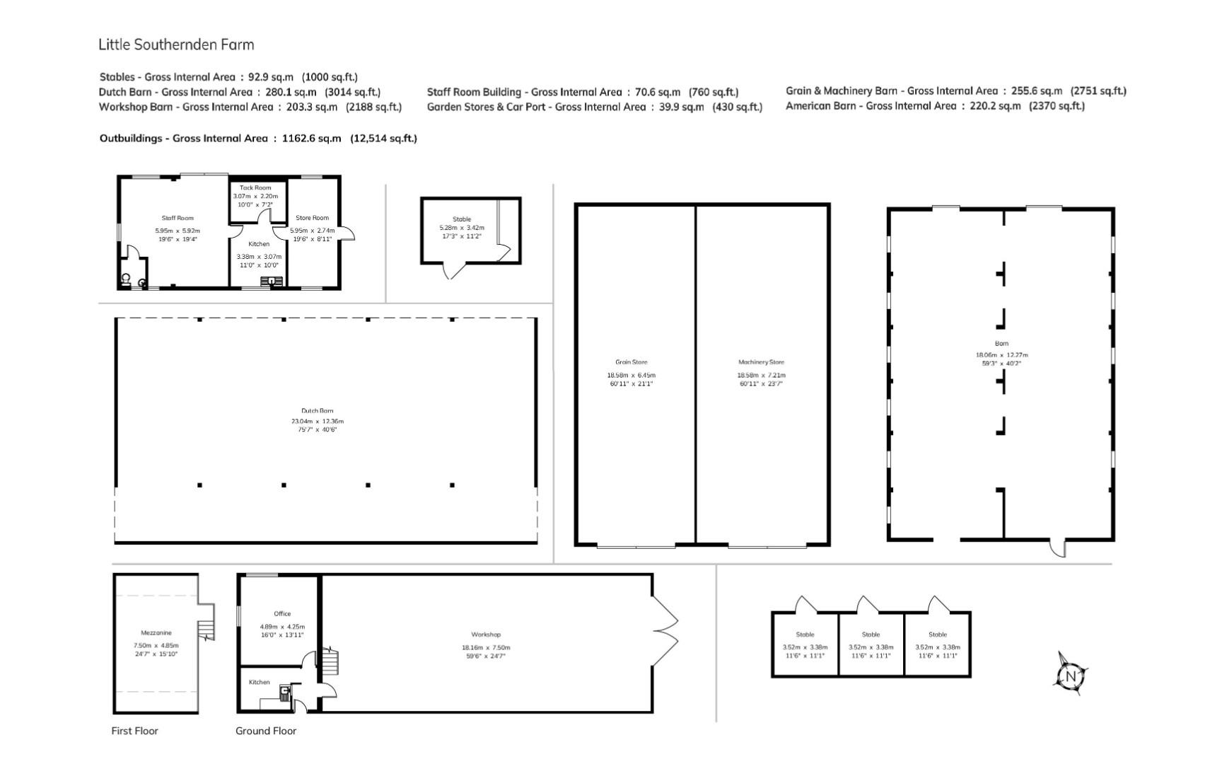
Farm Buildings
There are a significant range of buildings at Little Southernden Farm all of which have potential for a variety of uses being residential or commercial. Two of the buildings have recently been granted planning consent under Class Q Permitted Development for conversion into 3 dwellings. These include the large grain store which has consent for a pair of attached dwellings whilst a smaller store / feed building has consent to be converted to a single dwelling. Planning references are: 24/503836/PNQCLA & 24/503289/DEMREQ – Maidstone Borough Council.
Land
The agricultural land at Little Southernden is predominantly situated to the north and east of the house, yard and buildings. The land comprises a mixture of pasture (7.85 acres), woodland and ponds (1.10 acres) and arable land (40.90 acres). The pasture, woodland and ponds are all in hand with the arable land being farmed by a local farmer under a Farm Business Tenancy agreement with them vacating post harvest 2026. The arable land, woodland and ponds have BNG potential subject to the necessary surveys.
Further acreage / land is available subject to negotiation. This extends to approximately 79.79 acres and is off Grigg Lane in several parcels.
Please see the Property Particulars for further information on maps & plans, details on farm buildings, services, access, tenure, local authority, planning, rights of way etc.
Alex Cornwallis
Director
Challock Branch
Landline 01233 740077
Mobile 07799 846872
DOWNLOADS
LOCATION
