Discover our selection of properties for sale, from cosy cottages to spacious farmhouses and working farms, all set in some of the countryside’s most picturesque locations.
£5,040 pa
Marlowe Business Centre, Orange Street, Canterbury
Marlowe Business Centre, 4-6 Orange Street, Canterbury, Kent, CT1 2JAAT A GLANCE
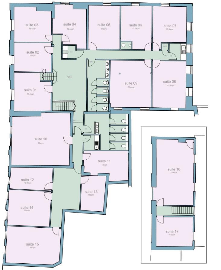
Modern office suites available on easy-in, easy-out terms.For available suites please see brochure.
DESCRIPTION
DESCRIPTION:
The available accommodation comprises modern office suites in a period building, benefiting from the following features:
Air Conditioning
Modern Lighting
Carpets
Entryphone Access to Each Suite
Shared Toilet and Kitchen Facilities
LOCATION
The historic cathedral city of Canterbury is around 60 miles south east of London, 28 miles east of Maidstone and 18 miles north-west of Dover. It has excellent connections with the A2 and A28 linking with the M2 and M20 motorways respectively, and two stations offering regular services to central London with journey times to London St Pancras of approximately 51 minutes. The property is located on Orange Street in the heart of the city centre, close the many shops and restaurants, Canterbury’s Beany Museum and the Marlowe Theatre and within close distance to public car parks.
TERMS
The suites are available on an easy-in easy-out terms subject to an inclusive rent, payable monthly in advance, covering heating, lighting, electricity, cleaning of communal areas and buildings insurance.
Please see attached property particulars for full details.
William Giles
Graduate Surveyor
Canterbury Branch
Landline 01227 763663
DOWNLOADS
LOCATION
