Discover our selection of properties for sale, from cosy cottages to spacious farmhouses and working farms, all set in some of the countryside’s most picturesque locations.
£395,000
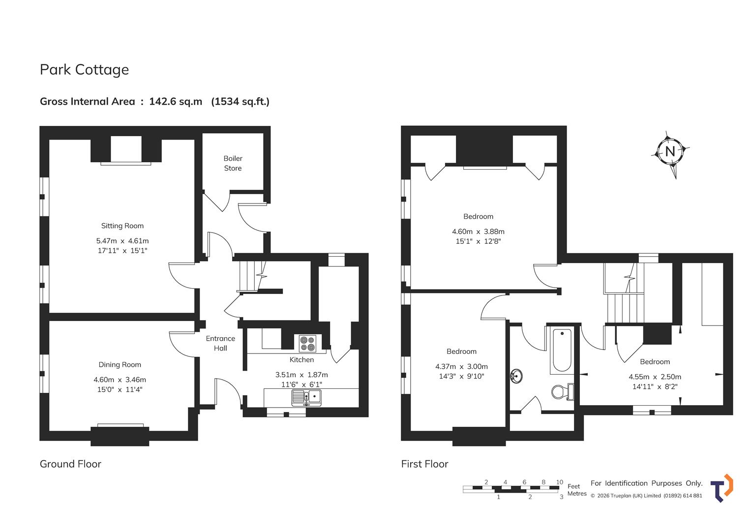
Park Cottage, Goodnestone, Canterbury, Kent
Park Cottage, Goodnestone, Canterbury, CT3 1QFKEY FEATURES
3 bedrooms
1 bathrooms
0.50 acres
AT A GLANCE
*BEST AND FINAL OFFERS DATE* - This sale is now going to Best & Final Offers with a closing date of 12 noon on Friday 27th March.A detached Grade II Listed 3-bedroom cottage in a peaceful and private edge of village location. Offers spacious living with characterful features. In need of modernisation and updating throughout. In all approx. 0.50 acres.
DESCRIPTION
*BEST AND FINAL OFFERS DATE* - This sale is now going to Best & Final Offers with a closing date of 12 noon on Friday 27th March. Please contact the Challock Office on 01233 740077 for further information.
Park Cottage is situated on the edge of the popular village of Goodnestone which lies in between the city of Canterbury and the town of Sandwich, with both able to provide a large range of facilities and amenities, including schooling and leisure options.
The property comprises a detached Grade II Listed Cottage of solid brick construction under pitched slate tiled roof.
Floor Plans of the exact layout of the property can be found within the Property Particulars with the Gross Internal Area extending to 1,534ft².
An extension to the north western elevation was granted consent under Reference: 21/00395 - Dover District Council. This has now lapsed but plans are available from the selling agents on request.
Outside, the Rear Garden is fully enclosed and surrounds the Cottage, consisting of lawned and bedded gardens throughout along with off road parking for multiple vehicles.
Please see the Property Particulars for further information on services, access, tenure & covenants, boundaries, maps & plans, etc.
*BEST AND FINAL OFFERS DATE* - This sale is now going to Best & Final Offers with a closing date of 12 noon on Friday 27th March. Please contact the Challock Office on 01233 740077 for further information.
Alex Cornwallis
Director
Challock Branch
Landline 01233 740077
Mobile 07799 846872
DOWNLOADS
LOCATION
