Discover our selection of properties for sale, from cosy cottages to spacious farmhouses and working farms, all set in some of the countryside’s most picturesque locations.
£375,000
Former Farmshop Site, Sandhurst, Cranbrook, Kent
Former Farmshop Site Queen Street, Sandhurst, Cranbrook, Kent, TN18 5HRKEY FEATURES
4 bedrooms
AT A GLANCE
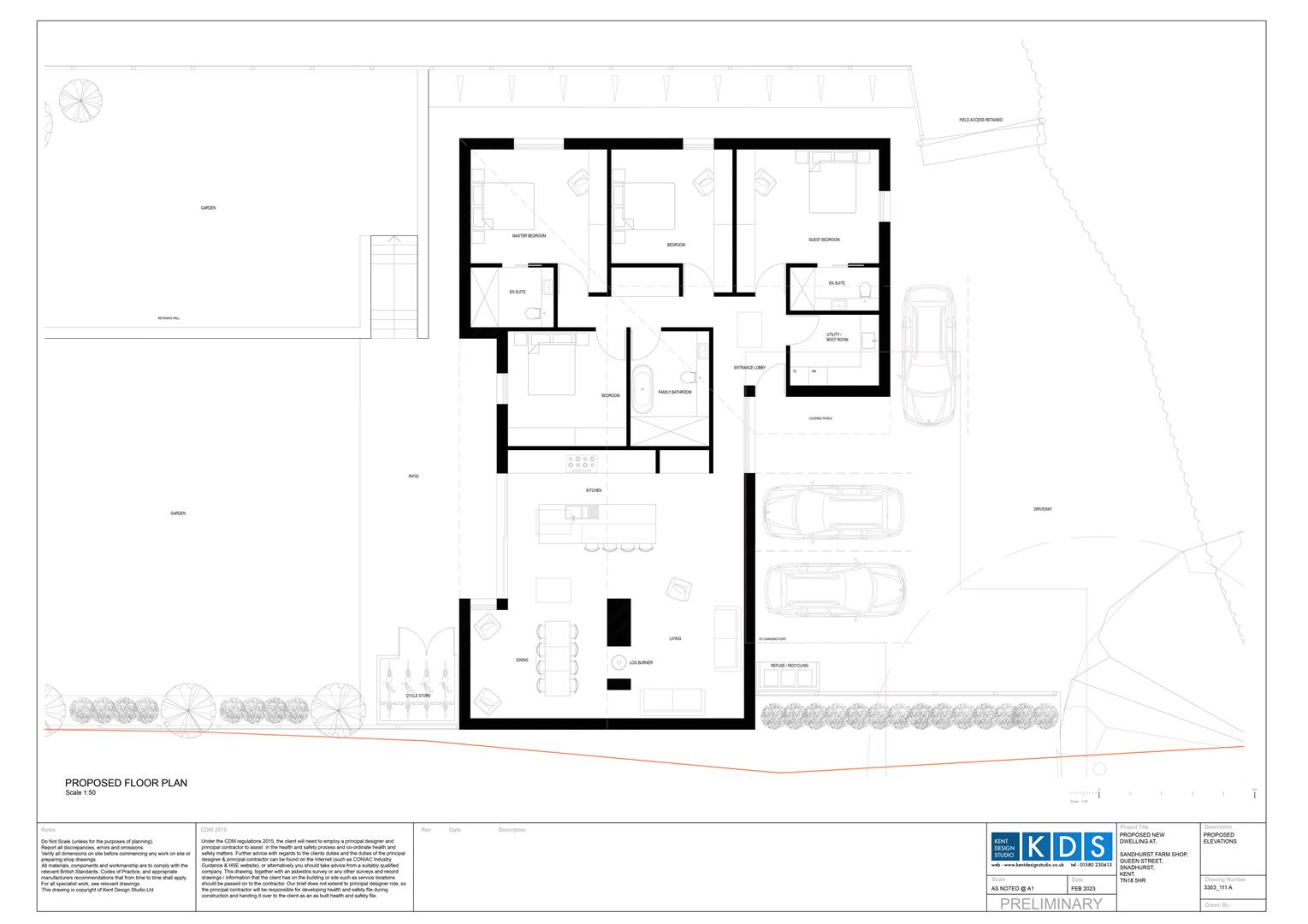
GENERAL DESCRIPTIONThe former Sandhurst Farmshop Site comprises a building of predominantly timber frame construction clad in timber weather boarding and is under a corrugated steel roof. This building has approval subject to various conditions for redevelopment into a residential dwelling under planning reference 23/01611/FULL – Tunbridge Wells Borough Council. A breakdown of the accommodation is as follows: -
The Front Door will open to Entrance Lobby leading to an open plan Kitchen, Sitting Room and Dining Room area with doors to the Rear Garden and Patio Area. Further doors from the Entrance Lobby lead to Utility Room with wash hand basin and plumbing for washing machine and tumble dryer, Family Bathroom with wash hand basin, w/c, shower and bath and Guest Bedroom (double) with Ensuite with shower, wash hand basin and w/c. Further doors lead to Master Bedroom (double) with fitted storage cupboards and Ensuite with shower, wash hand basin and w/c, Bedroom 2 (double) with fitted storage cupboards and Bedroom 3 (double) with fitted storage cupboards. The total footprint of the property to be developed extends to approximately 2,200ft².
Outside is a proposed driveway coming in from Queens Street to the north east and leading up to the proposed dwelling where there has been three off road Parking Spaces. There will be landscaped gardens and grounds to the south east. Please see the consented elevations and floor plans along with a proposed Block Plan overleaf for further information.
Alex Cornwallis
Director
Challock Branch
Landline 01233 740077
Mobile 07799 846872
DOWNLOADS
LOCATION
