Discover our selection of properties for sale, from cosy cottages to spacious farmhouses and working farms, all set in some of the countryside’s most picturesque locations.
£1,500,000
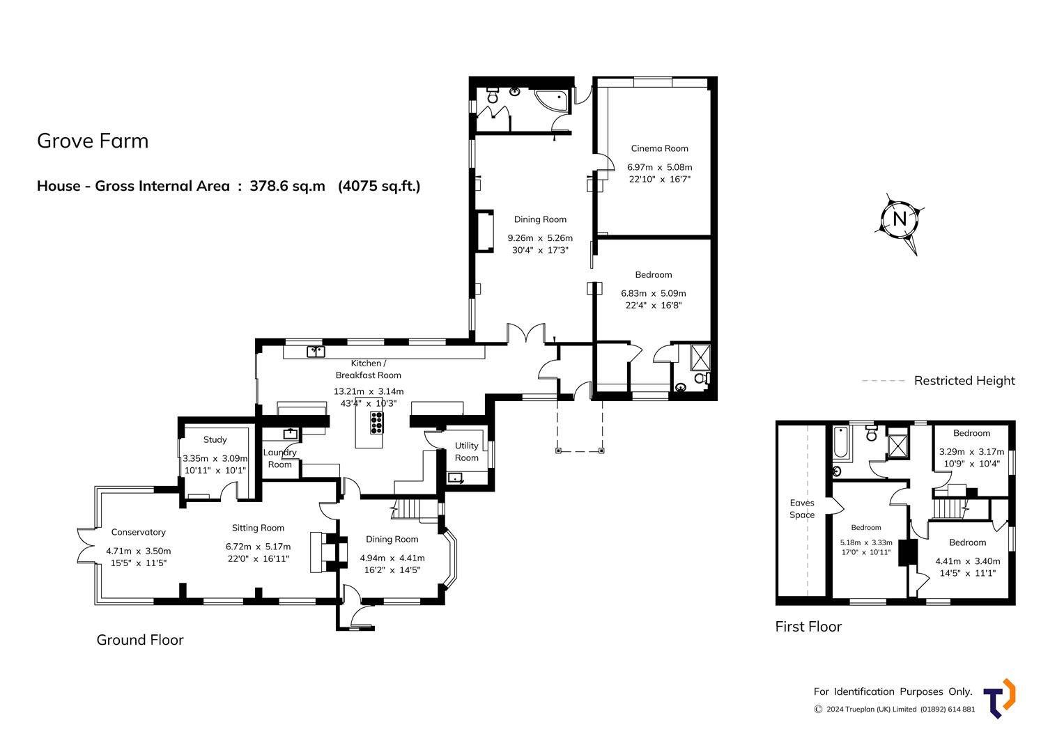
Grove Farm, Redbrook Street, Woodchurch
Grove Farm Redbrook Street, Woodchurch, TN26 3QSKEY FEATURES
4 bedrooms
2 bathrooms
48.68 acres
AT A GLANCE
A detached 4-bedroom farmhouse with annexe and extensive equestrian facilities, benefitting from far reaching views and set in a rural yet entirely accessible location. In all approximately 48.68 acres.DESCRIPTION
Grove Farm is situated in an entirely rural location off Redbrook Street just 2 miles north of the village of Woodchurch in Kent. Access to the property is directly from the Redbrook Street through a private gated electric entrance onto a tarmac drive. There is ample off road parking for various vehicles to the front of the property along with ample parking space round by the Yard Area.
A Tenant in Situ currently occupies the whole property. The Lease is for a term of 2 years from 14th November 2025.
The farmhouse was originally built in the 1930’s and is of solid brick construction, under a pitched hipped clay tile roof. The house has large spacious rooms with high ceilings and comprises Porch, Drawing Room, Sitting Room / Conservatory, Study, Kitchen / Breakfast Room, Utility Room, Laundry Room, Dining Room, 2 no Family Bathrooms, Cinema Room and 4 Large Bedrooms (one with En-Suite). The house is in need of some modernisation throughout but provides living accommodation extending in total to 4,705ft².
The property benefits from a large Garden which offers a large Patio Area, picturesque pond and lawned gardens to the rear and side of the farmhouse.
The stables and yard are located to the rear of the property and within this there are 21 loose boxes within a good sized concrete yard area, 2-bedroom ancillary accommodation with private access to and from the yard, indoor 5 horse walker with additional barn space, rug rooms, tea rooms, tack room, wash down area and foaling box. There is a large general purpose storage barn and work and a 60m x 20m menage which was refurbished in 2020.
The land is approximately 44.62 acres of pastureland and woodland which can be access through the main property drive and directly from the stable yard. The boundaries are fenced with post and rail fencing and are currently being used for the grazing of horses and for hay making. The land is classified as Grade III on the Agricultural Land Classification Plan.
Please see the property Particulars for further information on Boundary Plans, Floor Plans, Services, Access, Council Tax, Planning, Tenure, Rights of Way etc.
Alex Cornwallis
Director
Challock Branch
Landline 01233 740077
Mobile 07799 846872
DOWNLOADS
LOCATION
