Back to overview

£600,000

Stunts Green, Herstmonceux, Hailsham

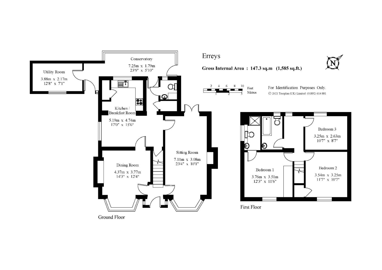
Erreys Stunts Green, Herstmonceux, Hailsham, East Sussex, BN27 4PP

KEY FEATURES

3 bedrooms

2 bathrooms

0.67 acres


AT A GLANCE

A charming detached three bedroom cottage set well back from the road.
Fine views over adjoining farmland.
Extending in all to approximately 0.67 acres.

DOWNLOADS

LOCATION