Back to overview

£600,000

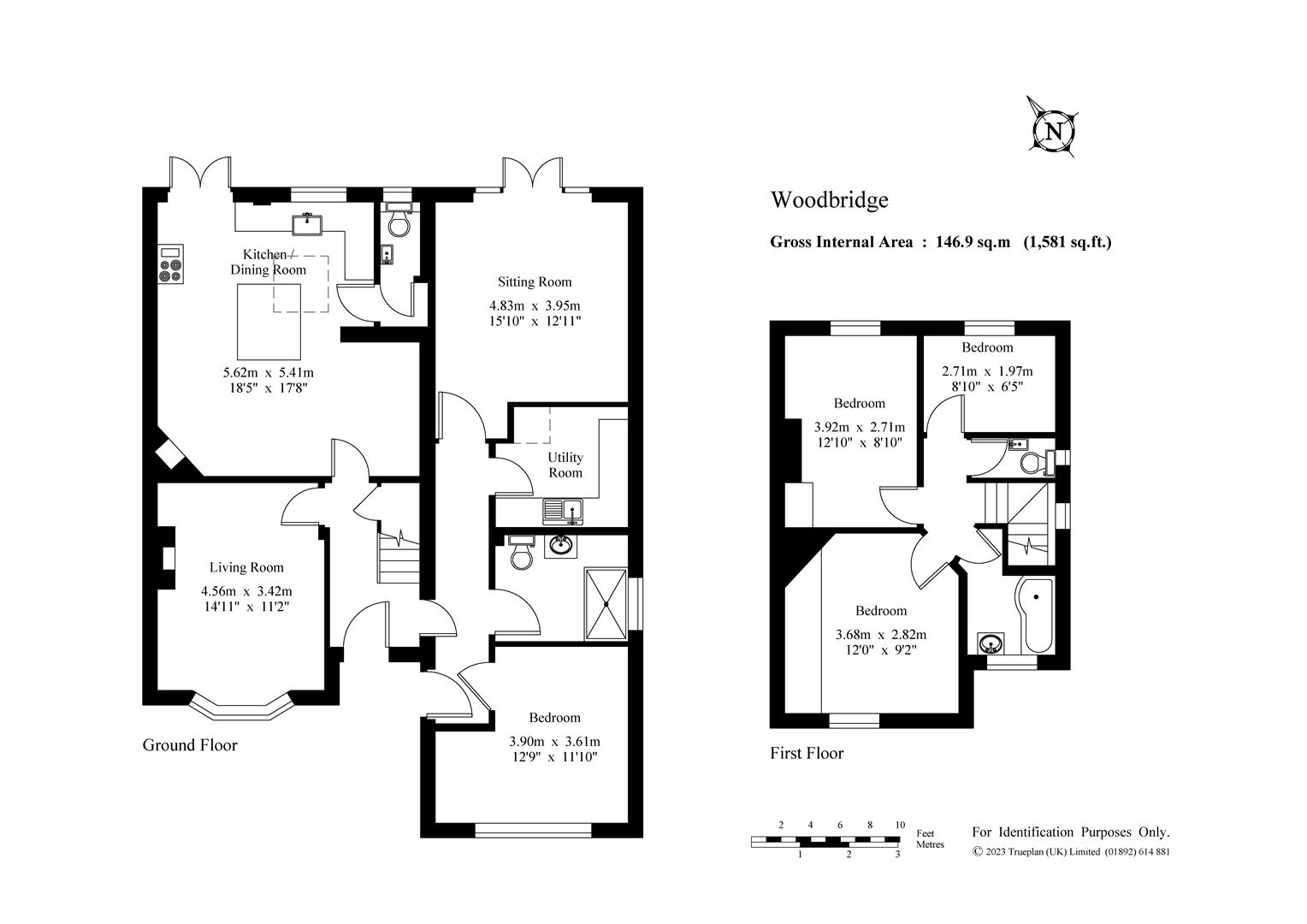
Woodbridge, Horsmonden, Kent

Woodbridge Goudhurst Road, Horsmonden, Tonbridge, Kent, TN12 8AE

KEY FEATURES

4 bedrooms


DOWNLOADS

LOCATION